#rutaBayern: Herrenchiemsee, el pequeño Versalles bávaro
Hace unos meses publicaba un post de debut en relación a la #rutaBayern, dedicado al tercer y desconocido palacio de Luis II en Baviera: Herrenchiemsee. Aquí va una segunda entrega, algo más extensa y en forma de atrevida comparativa con su modelo: el palacio francés de Versalles.
Ya de entrada hay que matizar que tratar de comparar el palacio de Versalles con su réplica bávara puede resultar sonrojante. A pesar de todo, sobreponer algunos datos y unas cuantas imágenes de ambos espacios puede dejar a más de uno con la boca abierta.
Partiendo de una imagen panorámica y completa, la comparativa se torna directamente imposible, pues se trata de dos palacios concebidos en dos contextos históricos muy diferentes o cuya superficie o impacto en la sociedad de su tiempo y en la actual nada tiene que ver.
Empezando por lo obvio, mientras Versalles es un excelente ejemplo de arte barroco del siglo XVII –iniciado hacia 1630– y uno de los palacios reales más grandes de Europa, el de Herrenchiemsee es una réplica construida 200 años después, entre 1878 y 1886. Estéticamente sigue los parámetros del barroco de Versalles, pero no deja de tratarse una reproducción posterior materializada con otro tipo de materiales o técnicas constructivas.
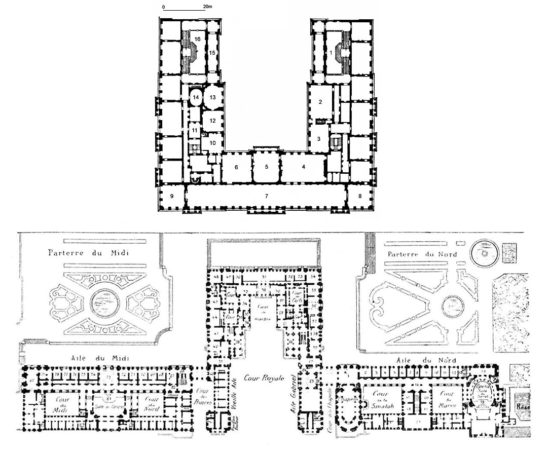
En cuanto a dimensiones, la comparativa tampoco se sostiene por ningún lado. Mientras que el palacio de Versalles, ampliado a lo largo del tiempo hasta la Revolución Francesa, ocupa una extensión de 67 km2 –entre palacio, pabellones y jardines–, el de Herrenchiemsee apenas se reduce a un pabellón, equiparable al cuerpo central de su arquetipo. La superficie de Versalles sería más bien comparable al tamaño del lago Chiemsee –79 km2–, mientras la Herreninsel, la isla donde encontramos el complejo de Herrenchiemsee, apenas mide 239 hectáreas.
De la misma manera, la influencia de ambos sobre su tiempo y sobre el actual son totalmente diferentes en cada caso. Versalles representó en su día el símbolo del poder casi ilimitado de los gobernantes franceses, de Luis XIV a su nieto Luis XVI. Hoy en día, es uno de los monumentos más visitados de Francia y del mundo, superando cómodamente la cifra de cinco millones de visitantes cada año.
Por su parte, Herrenchiemsee no pasa de burda réplica en este terreno: no fue concebido si quiera como palacio real sino como monumento de homenaje y no estuvo habitado ni por el mismo rey Luis II de Baviera –quien paso allí una decena de noches en su vida–. A la muerte del rey, con el palacio inacabado, los trabajos se interrumpieron y no fue usado como residencia por sus sucesores, que lo abrieron al turismo ya en el mismo año de la muerte del rey, 1886. Hoy en día, el palacio de Herrenchiemsee apenas influye tampoco en lo turístico. Es visitado por unas 400.000 personas cada año, por mucho que esto último sea más una ventaja para el viajero que otra cosa.
Si focalizamos, ¿dos gotas de agua?
Curiosamente, tal cual vamos cerrando el ángulo de enfoque los palacios de Versalles y Herrenchiemsee empiezan a parecerse más y más hasta el punto que pueden resultar casi idénticos según dónde postremos la mirada.
Fachada y planta
Georg Dollmann lo tuvo relativamente fácil, pues se trataba de reproducir la fachada principal del palacio de Versalles. Sin ser idénticas, mantienen la misma estructura, morfología y características muy similares. Lo mismo sucede con la planta, si bien en Herrenchiemsee solamente nos quedamos con el cuerpo central, ya que faltan las dos alas laterales, que no es poco.
Salón de los espejos
Si el Salón de los Espejos de Herrenchiemsee y el de Versalles no son físicamente idénticos es porque la copia bávara es sensiblemente más grande: mide 98 metros de largo, albergando 33 lámparas de araña y unos 50 candelabros. En la foto no se nota la diferencia.
Gran Escalera
Como ocurre con la sala de los espejos, el espacio de la Gran Escalera de Herrenchiemsee estaba destinado a ser una réplica exacta de este vestíbulo homónimo en Francia. No lo son, pues la escalera versallesa fue demolida en el siglo XVIII y hoy en su lugar encontramos un espacio más austero.

La gran escalera de Herrenchiemsee, izquierda; derecha, reconstrucción gráfica de la versallesa. /FOTO: WEB + SCHLOSS HERRENCHIEMSEE
Dormitorio
Luis II hizo reproducir una versión propia del dormitorio de Luis XIV en Versalles en más de una ocasión, pues no solamente lo vemos en Herrenchiemsee sino también en Linderhof. Balaustrada y cama en altura incluidas, aunque primando el color azul en el caso del monarca bávaro.
Esculturas y fuentes
Aunque en este apartado nos conformamos con parecidos razonables, en Herrenchiemsee no faltan algunas fuentes a la versallesa, así como esculturas de divinidades clásicas. Ahí están la fuente de Latone o las representaciones de Neptuno. Los jardines bávaros llevan la firma de Carl von Effner y son una versión simplificada e inacabada de los parisinos.
En resumen, situando ambos palacios en sus respectivos planos, lo de Herrenchiemsee es digno de estudio y, sin lugar a dudas, de visita. Por suerte, a día de hoy es un destino minoritario, lo que casi garantiza experiencias sorprendentes en un palacio oculto, desconocido y ubicado además estratégicamente sobre una isla en medio de un lago… a los pies de los Alpes.
Más posts sobre viajes en Baviera en:








